Заказать проект: (029) 853-53-53, (029) 136-44-37
Заказать проект дома в Минске за 3000 рублей

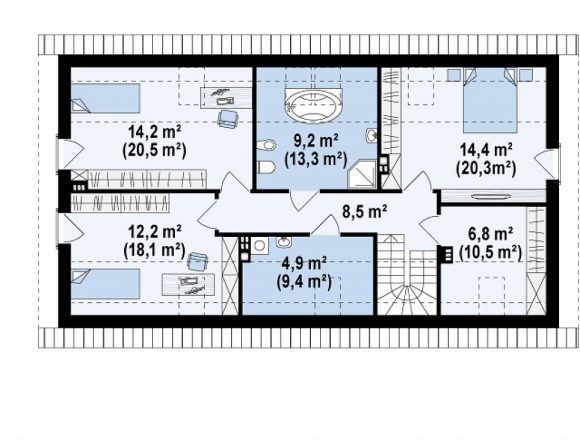
Проект дома на две семьи с мансардой Z187


2 414 бел. руб.



Образец готового проекта дома
Общая площадь

197.7 м²

Площадь застройки

123 м²

Высота

7.31 м

Угол наклона кровли

35°

Площадь крыши

184.52 м²

Минимальные размеры участка

шир. 23.3м × длина 16.34м

Стены

газосиликатные, керамические блоки

Перекрытие

монолитное

Кровля

керамическая черепица, металлочерепица, цементно-песчаная черепица

Ориентировочная стоимость строительства

59310 у.е.*