Заказать проект: (029) 853-53-53, (029) 136-44-37
Заказать проект дома в Минске за 3000 рублей

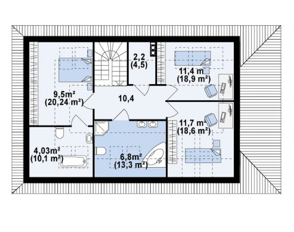
Проект дома с мансардой без гаража Z85 C


2 003 бел. руб.



Образец готового проекта дома
Общая площадь

195.1 м²

Площадь застройки

123 м²

Высота

7.09 м

Угол наклона кровли

32°

Площадь крыши

199.2 м²

Минимальные размеры участка

шир. 22.97м × длина 16.94м

Стены

газосиликатные, керамические блоки

Перекрытие

монолитное

Кровля

керамическая черепица, металлочерепица, цементно-песчаная черепица

Ориентировочная стоимость строительства

58530 у.е.*