Заказать проект: (029) 853-53-53, (029) 136-44-37
Заказать проект дома в Минске за 3000 рублей

Проект дома с мансардой и эркером Z2 + w p


2 232 бел. руб.



Образец готового проекта дома
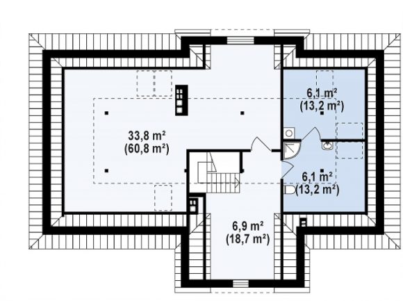
Общая площадь

274.5 м²

Площадь застройки

152 м²

Высота

6.71 м

Угол наклона кровли

32°

Площадь крыши

226.94 м²

Минимальные размеры участка

шир. 23.85м × длина 20.76м

Стены

газосиликатные, керамические блоки

Перекрытие

монолитное

Кровля

керамическая черепица, металлочерепица

Ориентировочная стоимость строительства

82350 у.е.*