Заказать проект: (029) 853-53-53, (029) 136-44-37
Заказать проект дома в Минске за 3000 рублей

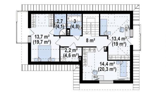
Проект дома с мансардой и гаражом Z150 GL


2 596 бел. руб.



Образец готового проекта дома
Общая площадь

171.7 м²

Площадь застройки

115 м²

Высота

6.87 м

Угол наклона кровли

35°

Площадь крыши

173 м²

Минимальные размеры участка

шир. 23.94м × длина 17.24м

Стены

газосиликатные, керамические блоки

Перекрытие

монолитное

Кровля

керамическая черепица, металлочерепица, цементно-песчаная черепица

Ориентировочная стоимость строительства

51510 у.е.*