Заказать проект: (029) 853-53-53, (029) 136-44-37
Заказать проект дома в Минске за 3000 рублей

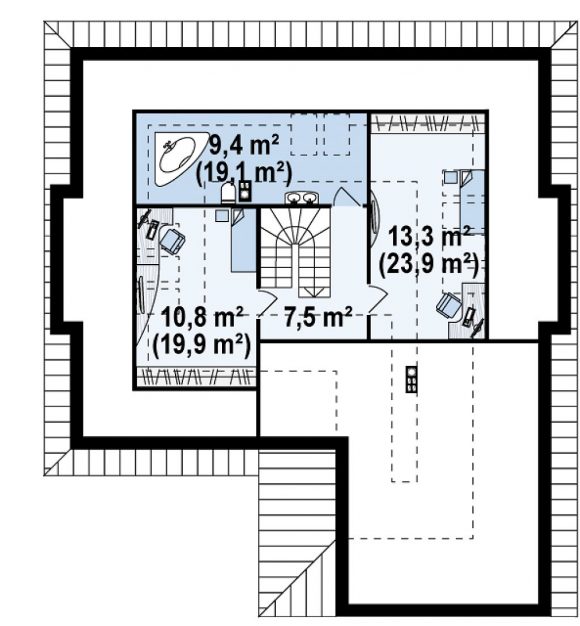
Проект дома с мансардой и гаражом Z158


2 596 бел. руб.



Образец готового проекта дома
Общая площадь

251.6 м²

Площадь застройки

218 м²

Высота

6.79 м

Угол наклона кровли

25°

Площадь крыши

282.73 м²

Минимальные размеры участка

шир. 23.84м × длина 25.34м

Стены

газосиликатные, керамические блоки

Перекрытие

монолитное

Кровля

керамическая черепица, металлочерепица, цементно-песчаная черепица

Ориентировочная стоимость строительства

75480 у.е.*