Заказать проект: (029) 853-53-53, (029) 136-44-37
Заказать проект дома в Минске за 3000 рублей

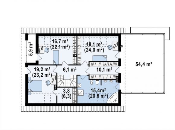
Проект дома с мансардой и гаражом Z161


2 596 бел. руб.



Образец готового проекта дома
Общая площадь

261.2 м²

Площадь застройки

181 м²

Высота

7.72 м

Угол наклона кровли

30°

Площадь крыши

201.15 м²

Минимальные размеры участка

шир. 27.04м × длина 18.44м

Стены

газосиликатные, керамические блоки

Перекрытие

монолитное

Кровля

керамическая черепица, металлочерепица, цементно-песчаная черепица

Ориентировочная стоимость строительства

78360 у.е.*