Заказать проект: (029) 853-53-53, (029) 136-44-37
Заказать проект дома в Минске за 3000 рублей

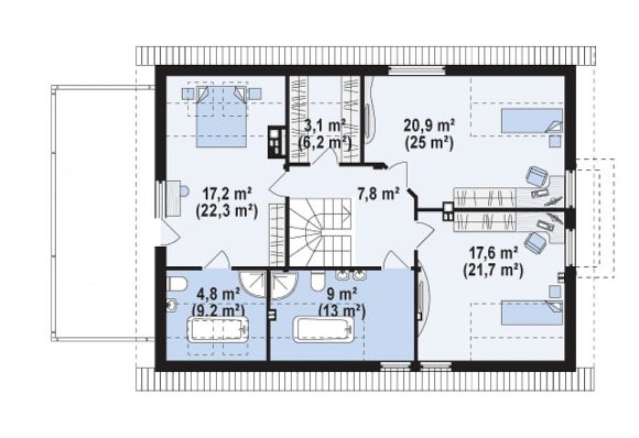
Проект дома с мансардой и гаражом Z236 GL2


2 232 бел. руб.



Образец готового проекта дома
Общая площадь

236.8 м²

Площадь застройки

162 м²

Высота

7.94 м

Угол наклона кровли

38°

Площадь крыши

190.43 м²

Минимальные размеры участка

шир. 0м × длина 0м

Стены

газосиликатные, керамические блоки

Перекрытие

монолитное

Кровля

керамическая черепица, металлочерепица, цементно-песчаная черепица

Ориентировочная стоимость строительства

71040 у.е.*