Заказать проект: (029) 853-53-53, (029) 136-44-37
Заказать проект дома в Минске за 3000 рублей

Проект дома с мансардой и гаражом Z240


1 935 бел. руб.



Образец готового проекта дома
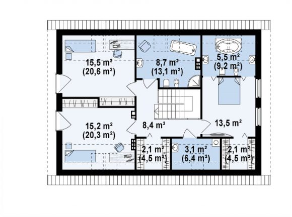
Общая площадь

194.8 м²

Площадь застройки

119 м²

Высота

8.29 м

Угол наклона кровли

40°

Площадь крыши

196.6 м²

Минимальные размеры участка

шир. 21.44м × длина 17.6м

Стены

газосиликатные, керамические блоки

Перекрытие

монолитное

Кровля

керамическая черепица, металлочерепица, цементно-песчаная черепица

Ориентировочная стоимость строительства

58440 у.е.*