Заказать проект: (029) 853-53-53, (029) 136-44-37
Заказать проект дома в Минске за 3000 рублей

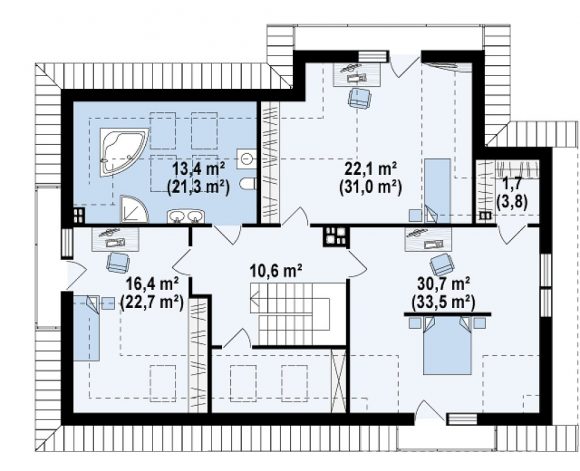
Проект дома с мансардой и гаражом Z272


2 596 бел. руб.



Образец готового проекта дома
Общая площадь

262.9 м²

Площадь застройки

163 м²

Высота

8.31 м

Угол наклона кровли

37°

Площадь крыши

260.9 м²

Минимальные размеры участка

шир. 23.24м × длина 19.64м

Стены

газосиликатные, керамические блоки

Перекрытие

монолитное

Кровля

керамическая черепица, металлочерепица, цементно-песчаная черепица

Ориентировочная стоимость строительства

78870 у.е.*