Заказать проект: (029) 853-53-53, (029) 136-44-37
Заказать проект дома в Минске за 3000 рублей

Проект дома с мансардой и гаражом Z370


2 232 бел. руб.



Образец готового проекта дома
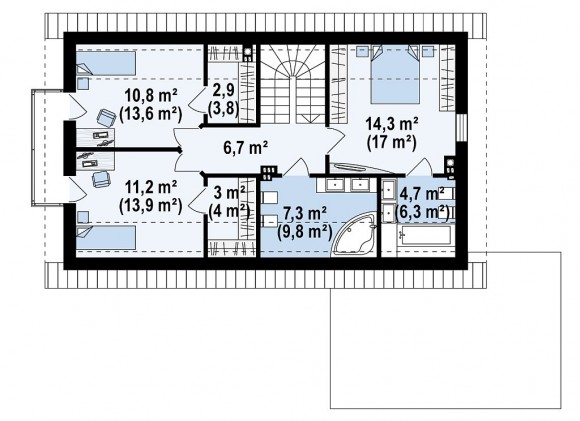
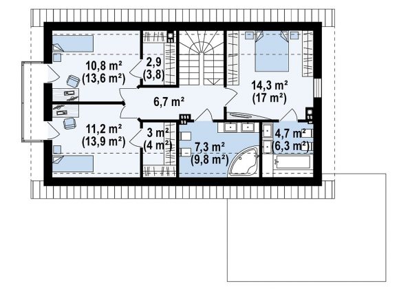
Общая площадь

179 м²

Площадь застройки

137 м²

Высота

7.88 м

Угол наклона кровли

40°

Площадь крыши

168 м²

Минимальные размеры участка

шир. 23.16м × длина 19.26м

Стены

газосиликатные, керамические блоки

Перекрытие

монолитное

Кровля

керамическая черепица, металлочерепица, цементно-песчаная черепица

Ориентировочная стоимость строительства

53700 у.е.*