Заказать проект: (029) 853-53-53, (029) 136-44-37
Заказать проект дома в Минске за 3000 рублей

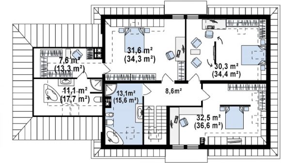
Проект дома с мансардой и гаражом Z50 A


4 030 бел. руб.



Образец готового проекта дома
Общая площадь

342.9 м²

Площадь застройки

219 м²

Высота

9.26 м

Угол наклона кровли

38°

Площадь крыши

342.4 м²

Минимальные размеры участка

шир. 29.05м × длина 19.29м

Стены

газосиликатные, керамические блоки, пеноблоки

Перекрытие

монолитное

Кровля

керамическая черепица, металлочерепица, цементно-песчаная черепица

Ориентировочная стоимость строительства

102870 у.е.*