Заказать проект: (029) 853-53-53, (029) 136-44-37
Заказать проект дома в Минске за 3000 рублей

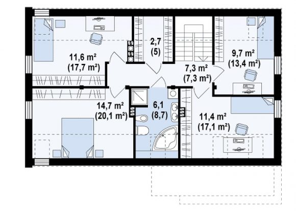
Проект дома с мансардой и гаражом Zx38


2 414 бел. руб.



Образец готового проекта дома
Общая площадь

186.6 м²

Площадь застройки

127 м²

Высота

7.57 м

Угол наклона кровли

35°

Площадь крыши

137 м²

Минимальные размеры участка

шир. 21.74м × длина 18.48м

Стены

газосиликатные, керамические блоки

Перекрытие

монолитное

Кровля

керамическая черепица, металлочерепица, цементно-песчаная черепица

Ориентировочная стоимость строительства

55980 у.е.*