Заказать проект: (029) 853-53-53, (029) 136-44-37
Заказать проект дома в Минске за 3000 рублей

Проект дома с мансардой на две семьи Zb13


3 280 бел. руб.



Образец готового проекта дома
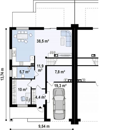
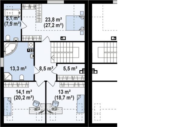
Общая площадь

197.8 м²

Площадь застройки

121 м²

Высота

8.52 м

Угол наклона кровли

32°

Площадь крыши

126.55 м²

Минимальные размеры участка

шир. 16.54м × длина 21.74м

Стены

газосиликатные, керамические блоки

Перекрытие

монолитное

Кровля

керамическая черепица, металлочерепица, цементно-песчаная черепица

Ориентировочная стоимость строительства

59340 у.е.*