Заказать проект: (029) 853-53-53, (029) 136-44-37
Заказать проект дома в Минске за 3000 рублей

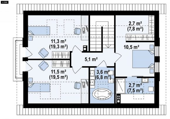
Проект дома с мансардой Z95 A


2 003 бел. руб.



Образец готового проекта дома
Общая площадь

155.9 м²

Площадь застройки

108 м²

Высота

6.9 м

Угол наклона кровли

35°

Площадь крыши

150.97 м²

Минимальные размеры участка

шир. 20.96м × длина 16.66м

Стены

газосиликатные, керамические блоки

Перекрытие

монолитное

Кровля

керамическая черепица, металлочерепица, цементно-песчаная черепица

Ориентировочная стоимость строительства

46770 у.е.*