Заказать проект: (029) 853-53-53, (029) 136-44-37
Заказать проект дома в Минске за 3000 рублей

Проект двухэтажного дома с гаражом Z398


2 003 бел. руб.



Образец готового проекта дома
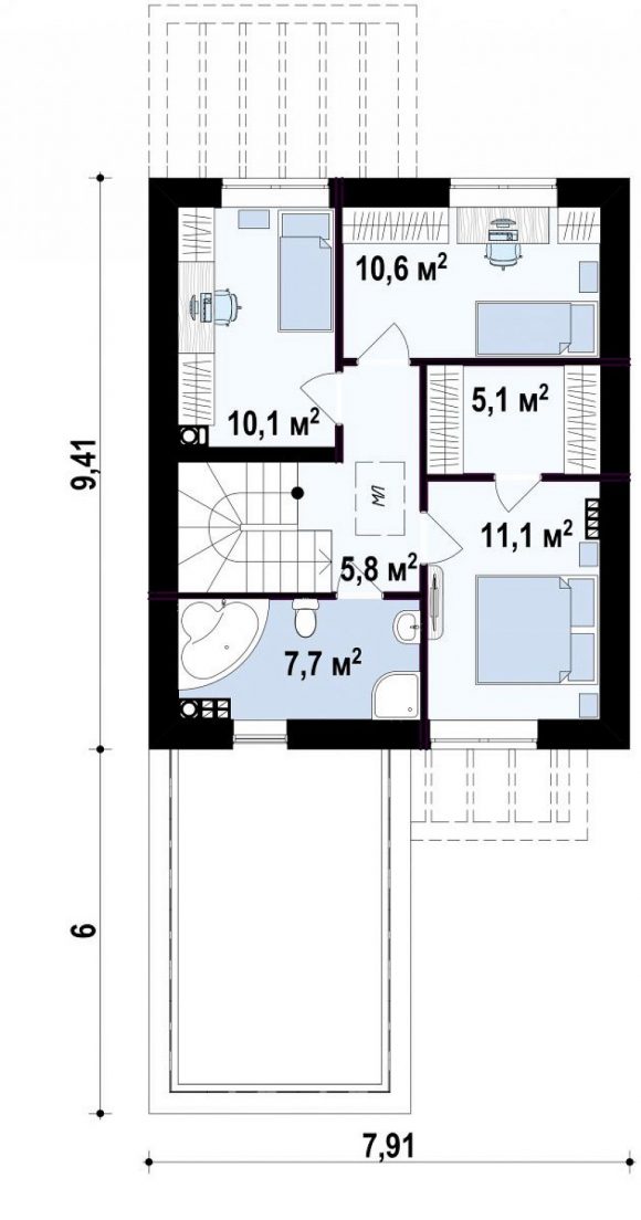
Общая площадь

134.1 м²

Площадь застройки

136 м²

Высота

8.18 м

Угол наклона кровли

22°

Площадь крыши

72.1 м²

Минимальные размеры участка

шир. 15.91м × длина 28.41м

Стены

газосиликатные, керамические блоки

Перекрытие

монолитное

Кровля

керамическая черепица, металлочерепица, цементно-песчаная черепица

Ориентировочная стоимость строительства

40230 у.е.*