Заказать проект: (029) 853-53-53, (029) 136-44-37
Заказать проект дома в Минске за 3000 рублей

Проект двухэтажного дома с гаражом Zz201


4 030 бел. руб.



Образец готового проекта дома
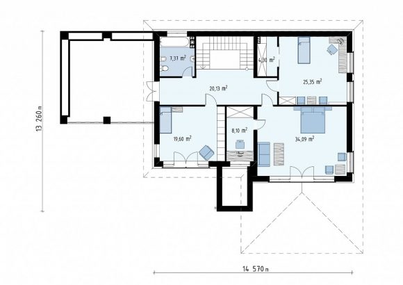
Общая площадь

267.8 м²

Площадь застройки

218 м²

Высота

9300 м

Угол наклона кровли

20°

Площадь крыши

99.25 м²

Минимальные размеры участка

шир. 27м × длина 23.5м

Стены

газосиликатные, керамические блоки

Перекрытие

монолитное

Кровля

керамическая черепица, металлочерепица, цементно-песчаная черепица

Ориентировочная стоимость строительства

80340 у.е.*