Заказать проект: (029) 853-53-53, (029) 136-44-37
Заказать проект дома в Минске за 3000 рублей

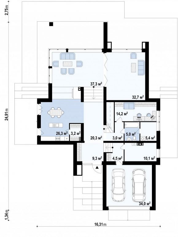
Проект двухэтажного дома с плоской крышей Zx125


4 030 бел. руб.



Образец готового проекта дома
Общая площадь

312 м²

Площадь застройки

487 м²

Высота

8.04 м

Угол наклона кровли

Площадь крыши

117.37 м²

Минимальные размеры участка

шир. 24.31м × длина 34.91м

Стены

газосиликатные, керамические блоки

Перекрытие

монолитное

Кровля

ПВХ мембрана

Ориентировочная стоимость строительства

93600 у.е.*