Заказать проект: (029) 853-53-53, (029) 136-44-37
Заказать проект дома в Минске за 3000 рублей

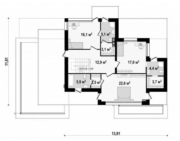
Проект двухэтажного дома с плоской крышей Zx22


3 461 бел. руб.



Образец готового проекта дома
Общая площадь

294.5 м²

Площадь застройки

372 м²

Высота

7.57 м

Угол наклона кровли

Площадь крыши

220.68 м²

Минимальные размеры участка

шир. 28.51м × длина 25.61м

Стены

газосиликатные, керамические блоки

Перекрытие

монолитное

Кровля

ПВХ мембрана

Ориентировочная стоимость строительства

88350 у.е.*