Заказать проект: (029) 853-53-53, (029) 136-44-37
Заказать проект дома в Минске за 3000 рублей

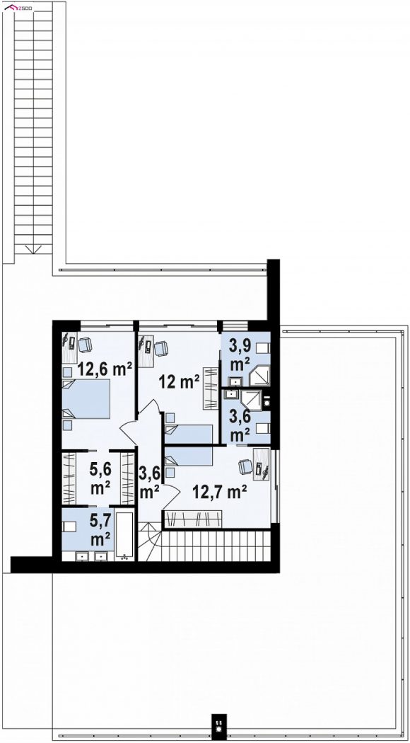
Проект двухэтажного дома с плоской крышей Zx98


3 119 бел. руб.



Образец готового проекта дома
Общая площадь

224.5 м²

Площадь застройки

239 м²

Высота

8.22 м

Угол наклона кровли

Площадь крыши

100.59 м²

Минимальные размеры участка

шир. 22.56м × длина 27.1м

Стены

газосиликатные, керамические блоки

Перекрытие

монолитное

Кровля

ПВХ мембрана

Ориентировочная стоимость строительства

67350 у.е.*