Заказать проект: (029) 853-53-53, (029) 136-44-37
Заказать проект дома в Минске за 3000 рублей

Экономичный в строительстве проект дома с эркером Z95


2 232 бел. руб.



Образец готового проекта дома
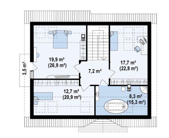
Общая площадь*

188,1 м²

Площадь застройки

117,5 м²

Кубатура

450,8 m³

Высота

8,03 m

Угол наклона кровли

40°

Площадь крыши

192 m²

Минимальные размеры участка

шир. 20,18m × длина 17,78m

Стены

газобетон, керамические блоки

Перекрытие

монолитное перекрытие

Кровля

керамическая черепица, металлочерепица, цементно- песчаная черепица

Ориентировочная стоимость строительства

156375 у.е.

Отзывов пока нет.

Be the first to review “Экономичный в строительстве проект дома с эркером Z95”