Заказать проект: (029) 853-53-53, (029) 136-44-37
Заказать проект дома в Минске за 3000 рублей

Готовый проект загородного дома Z101 Lh+


2 003 бел. руб.



Образец готового проекта дома
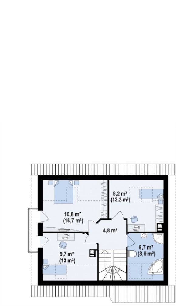
Общая площадь*

118,5 м²

Площадь застройки

77,9 м²

Кубатура

278,7 м³

Высота

7,37 м

Угол наклона кровли

40°

Минимальные размеры участка

ширина 17,18м × длина 15,98м

Стены

газобетон, керамические блоки, силикатные блоки

Перекрытие

плиты перекрытия

Кровля

керамическая черепица, металлочерепица

Ориентировочная стоимость строительства

113625 у.е.

Отзывов пока нет.

Be the first to review “Готовый проект загородного дома Z101 Lh+”