Заказать проект: (029) 853-53-53, (029) 136-44-37
Заказать проект дома в Минске за 3000 рублей

Проект частного дома с гаражом Z119


1 998 бел. руб.



Образец готового проекта дома
Общая площадь*

176,7 м²

Площадь застройки

111,2 м²

Кубатура

496,4 м³

Высота

7,9 м

Угол наклона кровли

38°

Площадь крыши

183,35 м²

Минимальные размеры участка

ширина 19,34м × длина 17,84м

Стены

газосиликатные блоки, керамические блоки/кирпич

Перекрытие

монолитное перекрытие

Кровля

керамическая черепица, металлочерепица, цементно-песчаная черепица

Ориентировочная стоимость строительства

169425 у.е.

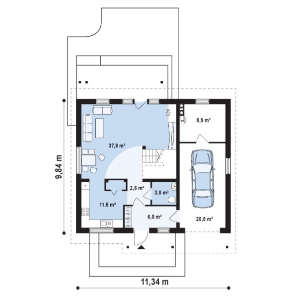
Проект частного дома с гаражом Z119 сочетает в себе функциональность и стиль современной архитектуры. В виду своих небольших габаритов, дом можно построить даже на небольшом участке. Он недорог в строительстве и эксплуатации. Дизайнеры хорошо поработали, подобрав удачное сочетание светлого тона фасада, элементов деревянной отделки и пепельной плитки. Большую часть площади первого этажа занимает просторная гостиная с камином и выходом на террасу на заднем дворе. Большое пространство гостиной позволит Вам разместить абсолютно любую мебель. Угловая кухня практична, ведь здесь есть специальная кладовая для кухонной утвари и сезонных заготовок. В гараже предусмотрено отдельное хозяйственное помещение-котельная.

На втором этаже спроектированы три спальни, одна из которых имеет собственную ванную комнату, одна общая ванная и отдельная гардеробная. Места для шкафов в каждой из спален более чем достаточно.

Заказав проект частного дома с гаражом Z119, Вы решите вопрос подбора подходящего функционального проекта самой распространенной площади 170 м2, который заметно выделится на фоне соседей.

Отзывов пока нет.

Be the first to review “Проект частного дома с гаражом Z119”