Заказать проект: (029) 853-53-53, (029) 136-44-37
Заказать проект дома в Минске за 3000 рублей

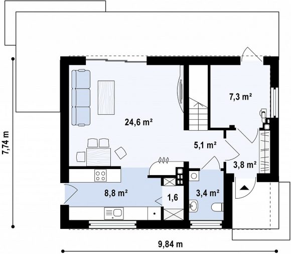
Проект дома с мансардой и двускатной крышей Z229


2 003 бел. руб.



Образец готового проекта дома
Общая площадь

109.6 м²

Площадь застройки

72 м²

Высота

7.6 м

Угол наклона кровли

35°

Площадь крыши

81.8 м²

Минимальные размеры участка

шир. 17.84м × длина 15.74м

Стены

газосиликатные, керамические блоки

Перекрытие

монолитное

Кровля

керамическая черепица, металлочерепица, цементно-песчаная черепица

Ориентировочная стоимость строительства

32880 у.е.*