ЭСКИЗНЫЙ РАЗДЕЛ (ДЛЯ СОГЛАСОВАНИЯ)
- Копия диплома архитектора
- Копии документов на землю (предоставляются заказчиком)
- Пояснительная записка
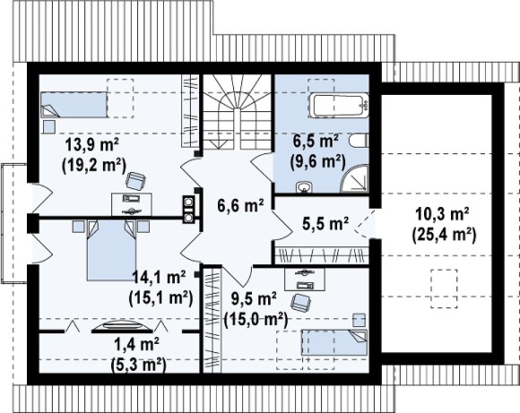
- Планы этажей
- Фасады в осях
- Разрез
АРХИТЕКТУРНО-СТРОИТЕЛЬНЫЙ РАЗДЕЛ
- Архитектурно-строительные чертежи с указанием точных габаритов дома, его отдельных узлов и конструкций (планы этажей, кровли, фасадов, полы, разрезы, технические характеристики столярки, визуализации).
- Конструктивные чертежи, которые включают в себя подробные технические данные проекта, конструктивные чертежи фундамента, схему армирования, чертежи стропильной системы, перекрытий, перемычек, чертежи определенных деталей и узлов.
- Спецификации изделий и материалов.
- Объем строительных материалов.
Дополнительно к архитектурно-строительному проекту дома Вы можете заказать:
ИНЖЕНЕРНЫЙ РАЗДЕЛ (+50% к стоимости проекта)
- Схемы разводок водоснабжения и канализации
- Схемы разводок отопления, вентиляции
- Схемы разводок электроснабжения
- Спецификации материалов и оборудования
Отзывов пока нет.