Заказать проект: (029) 853-53-53, (029) 136-44-37
Заказать проект дома в Минске за 3000 рублей

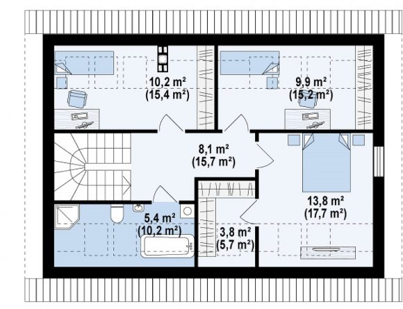
Проект дома с мансардой и двускатной крышей Z267


1 777 бел. руб.



Образец готового проекта дома
Общая площадь

147.8 м²

Площадь застройки

86 м²

Высота

7.53 м

Угол наклона кровли

40°

Площадь крыши

154.6 м²

Минимальные размеры участка

шир. 18.64м × длина 16.34м

Стены

газосиликатные, керамические блоки

Перекрытие

монолитное

Кровля

керамическая черепица, металлочерепица, цементно-песчаная черепица

Ориентировочная стоимость строительства

44340 у.е.*