Заказать проект: (029) 853-53-53, (029) 136-44-37
Заказать проект дома в Минске за 3000 рублей

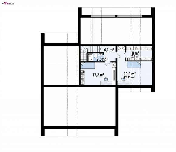
Проект дома с мансардой и гаражом Zx251


3 119 бел. руб.



Образец готового проекта дома
Общая площадь

225.9 м²

Площадь застройки

225 м²

Высота

8.23 м

Угол наклона кровли

30°

Площадь крыши

312.29 м²

Минимальные размеры участка

шир. 22.76м × длина 26.92м

Стены

газосиликатные, керамические блоки

Перекрытие

монолитное

Кровля

керамическая черепица, металлочерепица

Ориентировочная стоимость строительства

67770 у.е.*