Заказать проект: (029) 853-53-53, (029) 136-44-37
Заказать проект дома в Минске за 3000 рублей

Проект дома с мансардой и гаражом Z109 GP2


2 322 бел. руб.



Образец готового проекта дома
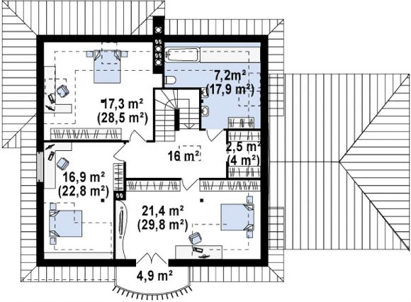
Общая площадь

280.3 м²

Площадь застройки

200 м²

Высота

9.09 м

Угол наклона кровли

37°

Площадь крыши

0 м²

Минимальные размеры участка

шир. 26.14м × длина 19.94м

Стены

газосиликатные, керамические блоки

Перекрытие

монолитное

Кровля

керамическая черепица, металлочерепица

Ориентировочная стоимость строительства

84090 у.е.*