Заказать проект: (029) 853-53-53, (029) 136-44-37
Заказать проект дома в Минске за 3000 рублей

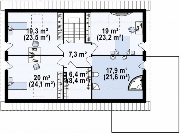
Проект дома с мансардой и гаражом Z142


2 322 бел. руб.



Образец готового проекта дома
Общая площадь

246.9 м²

Площадь застройки

170 м²

Высота

8.49 м

Угол наклона кровли

40°

Площадь крыши

214.35 м²

Минимальные размеры участка

шир. 24.54м × длина 20.48м

Стены

газосиликатные, керамические блоки

Перекрытие

монолитное

Кровля

керамическая черепица, металлочерепица, цементно-песчаная черепица

Ориентировочная стоимость строительства

74070 у.е.*