Заказать проект: (029) 853-53-53, (029) 136-44-37
Заказать проект дома в Минске за 3000 рублей

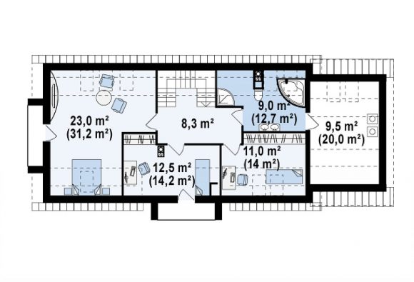
Проект дома с мансардой и гаражом Z157


2 003 бел. руб.



Образец готового проекта дома
Общая площадь

208.6 м²

Площадь застройки

135 м²

Высота

7.45 м

Угол наклона кровли

38°

Площадь крыши

195.9 м²

Минимальные размеры участка

шир. 26.24м × длина 16.34м

Стены

газосиликатные, керамические блоки

Перекрытие

монолитное

Кровля

керамическая черепица, металлочерепица, цементно-песчаная черепица

Ориентировочная стоимость строительства

62580 у.е.*