Заказать проект: (029) 853-53-53, (029) 136-44-37
Заказать проект дома в Минске за 3000 рублей

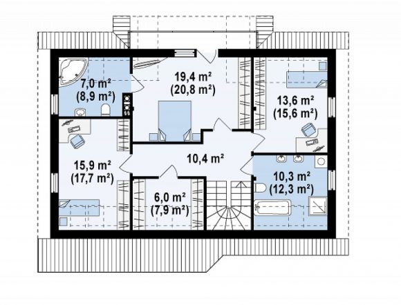
Проект дома с мансардой и гаражом Z170


1 935 бел. руб.



Образец готового проекта дома
Общая площадь

195 м²

Площадь застройки

126 м²

Высота

8.44 м

Угол наклона кровли

40°

Площадь крыши

210.98 м²

Минимальные размеры участка

шир. 21.44м × длина 17.84м

Стены

газосиликатные, керамические блоки

Перекрытие

монолитное

Кровля

керамическая черепица, металлочерепица, цементно-песчаная черепица

Ориентировочная стоимость строительства

58500 у.е.*