Заказать проект: (029) 853-53-53, (029) 136-44-37
Заказать проект дома в Минске за 3000 рублей

Проект дома с мансардой и гаражом Z211 GL


2 003 бел. руб.



Образец готового проекта дома
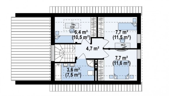
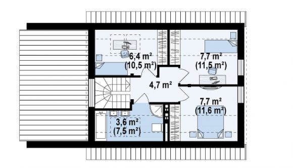
Общая площадь

116.1 м²

Площадь застройки

90 м²

Высота

7.14 м

Угол наклона кровли

40°

Площадь крыши

124.56 м²

Минимальные размеры участка

шир. 19.54м × длина 15.14м

Стены

газосиликатные, керамические блоки

Перекрытие

монолитное

Кровля

керамическая черепица, металлочерепица, цементно-песчаная черепица

Ориентировочная стоимость строительства

34830 у.е.*