Заказать проект: (029) 853-53-53, (029) 136-44-37
Заказать проект дома в Минске за 3000 рублей

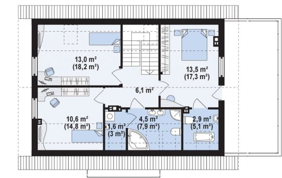
Проект дома с мансардой и гаражом Z244 GP


2 232 бел. руб.



Образец готового проекта дома
Общая площадь

173.6 м²

Площадь застройки

127 м²

Высота

7.38 м

Угол наклона кровли

35°

Площадь крыши

152.4 м²

Минимальные размеры участка

шир. 22.54м × длина 16.34м

Стены

газосиликатные, керамические блоки

Перекрытие

монолитное

Кровля

керамическая черепица, металлочерепица, цементно-песчаная черепица

Ориентировочная стоимость строительства

52080 у.е.*