Заказать проект: (029) 853-53-53, (029) 136-44-37
Заказать проект дома в Минске за 3000 рублей

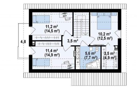
Проект дома с мансардой и террасой Z225 k


2 232 бел. руб.



Образец готового проекта дома
Общая площадь

120.2 м²

Площадь застройки

80 м²

Высота

7.75 м

Угол наклона кровли

40°

Площадь крыши

135.95 м²

Минимальные размеры участка

шир. 18.74м × длина 15.44м

Стены

газосиликатные, керамические блоки

Перекрытие

монолитное

Кровля

керамическая черепица, металлочерепица, цементно-песчаная черепица

Ориентировочная стоимость строительства

36060 у.е.*