Заказать проект: (029) 853-53-53, (029) 136-44-37
Заказать проект дома в Минске за 3000 рублей

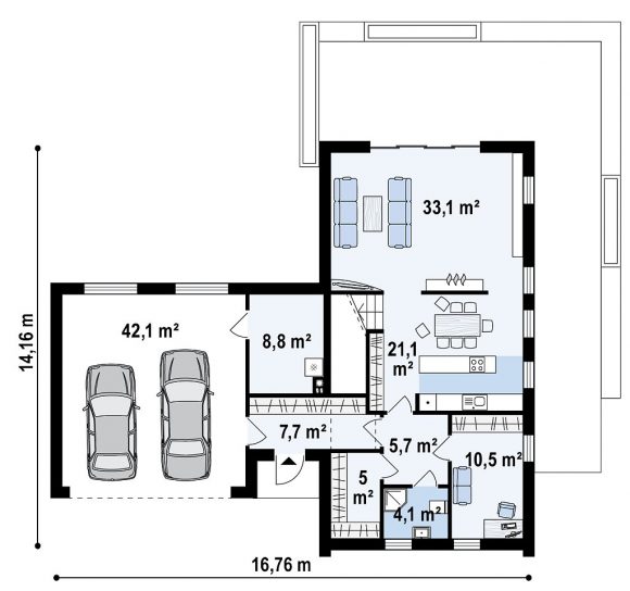
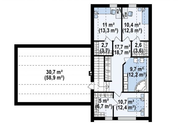
Проект дома с мансардой и гаражом Z373


2 003 бел. руб.



Образец готового проекта дома
Общая площадь

219.3 м²

Площадь застройки

0 м²

Высота

8.51 м

Угол наклона кровли

40°

Площадь крыши

0 м²

Минимальные размеры участка

шир. 23.76м × длина 22.16м

Стены

газосиликатные, керамические блоки

Перекрытие

монолитное

Кровля

керамическая черепица, металлочерепица, цементно-песчаная черепица

Ориентировочная стоимость строительства

65790 у.е.*