Заказать проект: (029) 853-53-53, (029) 136-44-37
Заказать проект дома в Минске за 3000 рублей

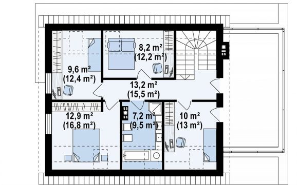
Проект дома с мансардой и гаражом Z347


2 232 бел. руб.



Образец готового проекта дома
Общая площадь

167.9 м²

Площадь застройки

160 м²

Высота

8.18 м

Угол наклона кровли

40°

Площадь крыши

0 м²

Минимальные размеры участка

шир. 22.25м × длина 28.06м

Стены

газосиликатные, керамические блоки

Перекрытие

монолитное

Кровля

керамическая черепица, металлочерепица, цементно-песчаная черепица

Ориентировочная стоимость строительства

50370 у.е.*