Заказать проект: (029) 853-53-53, (029) 136-44-37
Заказать проект дома в Минске за 3000 рублей

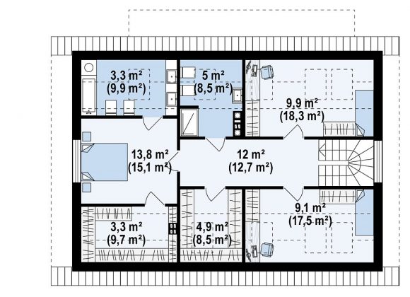
Проект дома с мансардой и панорамными окнами Z343


2 232 бел. руб.



Образец готового проекта дома
Общая площадь

198.3 м²

Площадь застройки

129 м²

Высота

7.5 м

Угол наклона кровли

35°

Площадь крыши

180 м²

Минимальные размеры участка

шир. 21.46м × длина 17.56м

Стены

газосиликатные, керамические блоки

Перекрытие

монолитное

Кровля

керамическая черепица, металлочерепица, цементно-песчаная черепица

Ориентировочная стоимость строительства

59490 у.е.*