Заказать проект: (029) 853-53-53, (029) 136-44-37
Заказать проект дома в Минске за 3000 рублей

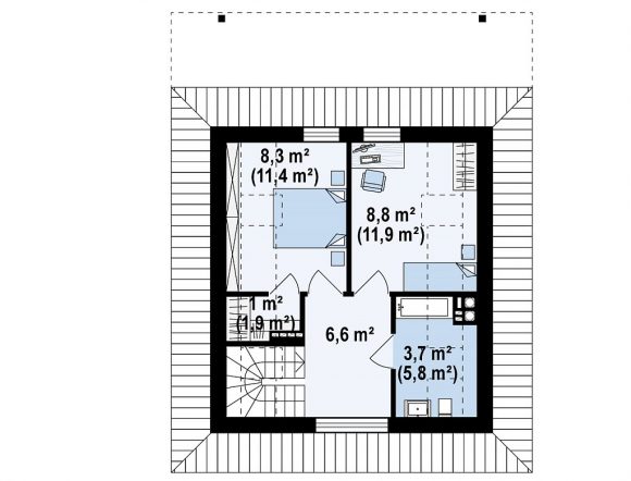
Проект дома с мансардой Z362


2 003 бел. руб.



Образец готового проекта дома
Общая площадь

78 м²

Площадь застройки

77 м²

Высота

7.66 м

Угол наклона кровли

42°

Площадь крыши

155.47 м²

Минимальные размеры участка

шир. 13.16м × длина 15.76м

Стены

газосиликатные, керамические блоки

Перекрытие

монолитное

Кровля

керамическая черепица, металлочерепица, цементно-песчаная черепица

Ориентировочная стоимость строительства

23400 у.е.*