Заказать проект: (029) 853-53-53, (029) 136-44-37
Заказать проект дома в Минске за 3000 рублей

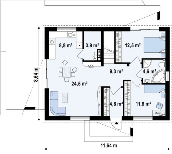
Проект одноэтажного дома с террасой Z255


2 003 бел. руб.



Образец готового проекта дома
Общая площадь

80.2 м²

Площадь застройки

101 м²

Высота

6.58 м

Угол наклона кровли

30°

Площадь крыши

145.9 м²

Минимальные размеры участка

шир. 19.64м × длина 16.64м

Стены

газосиликатные, керамические блоки

Перекрытие

по деревянным балкам

Кровля

керамическая черепица, металлочерепица, цементно-песчаная черепица

Ориентировочная стоимость строительства

24060 у.е.*