Заказать проект: (029) 853-53-53, (029) 136-44-37
Заказать проект дома в Минске за 3000 рублей

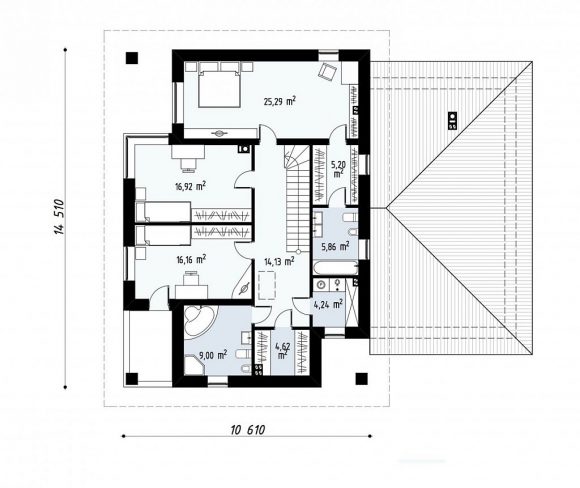
Проект двухэтажного дома с гаражом Zx122


2 961 бел. руб.



Образец готового проекта дома
Общая площадь

266.1 м²

Площадь застройки

210 м²

Высота

8.91 м

Угол наклона кровли

25°

Площадь крыши

285.5 м²

Минимальные размеры участка

шир. 23м × длина 22м

Стены

газосиликатные, керамические блоки

Перекрытие

монолитное

Кровля

керамическая черепица, металлочерепица, цементно-песчаная черепица

Ориентировочная стоимость строительства

79830 у.е.*