Заказать проект: (029) 853-53-53, (029) 136-44-37
Заказать проект дома в Минске за 3000 рублей

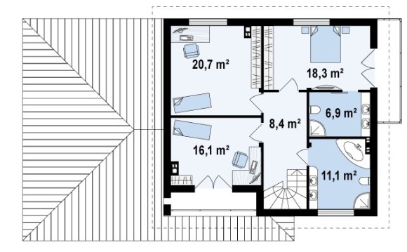
Проект двухэтажного дома с гаражом Zx12 GL2


2 961 бел. руб.



Образец готового проекта дома
Общая площадь*

225,7 м²

Площадь застройки

172,4 м²

Кубатура

463,79 м³

Высота

9,55 м

Угол наклона кровли

30° / 25°

Площадь крыши

255,69 м²

Минимальные размеры участка

ширина 23,68м × длина 18,68м

Стены

газосиликатные блоки, кирпич, керамические блоки

Перекрытие

монолитное перекрытие

Кровля

керамическая черепица, металлочерепица, цементно- песчаная черепица

Ориентировочная стоимость строительства

216113 у.е.

Отзывов пока нет.

Be the first to review “Проект двухэтажного дома с гаражом Zx12 GL2”