Заказать проект: (029) 853-53-53, (029) 136-44-37
Заказать проект дома в Минске за 3000 рублей

Проект экономичного загородного дома из газобетона Z211


2 003 бел. руб.



Образец готового проекта дома
Общая площадь*

94,8 м²

Площадь застройки

63,9 м²

Кубатура

296 м³

Высота

7,14 м

Угол наклона кровли

40°

Площадь крыши

97,3 м²

Минимальные размеры участка

ширина 16,94м × длина 15,14м

Стены

газосиликатные блоки, кирпич, керамические блоки

Перекрытие

монолитное перекрытие

Кровля

керамическая черепица, металлочерепица, цементно- песчаная черепица

Ориентировочная стоимость строительства

74813 у.е.

Проект экономичного небольшого загородного дома из газобетона Z211 при всей простоте своей архитектуры смотрится достаточно стильно за счет облицовки фасадов по всему периметру здания, да и стеклянный навес над входом вносит свою лепту в современный характер этого проекта дома.

Из прихожей мы проходим в небольшой холл, который ведет с одной стороны на лестницу второго этажа, а с другой – в уютную гостиную с камином и выходом на крытую террасу со стороны сада. Г-образная кухня достаточно функциональна, ведь здесь есть проходная кладовая, которая облегчает разгрузку продуктов, а с целью экономии места она же является и мини-котельной. Также на первом этаже предусмотрена ванная комната с душевой кабиной и спальня для гостей.

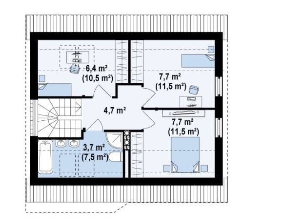
На втором этаже спроектированы 3 спальни с достаточным пространством для платяных шкафов. Ванная комната на втором этаже проект экономичного дома из газобетона Z211 вместит все необходимое оборудование и технику.

Отзывов пока нет.

Be the first to review “Проект экономичного загородного дома из газобетона Z211”