Заказать проект: (029) 853-53-53, (029) 136-44-37
Заказать проект дома в Минске за 3000 рублей

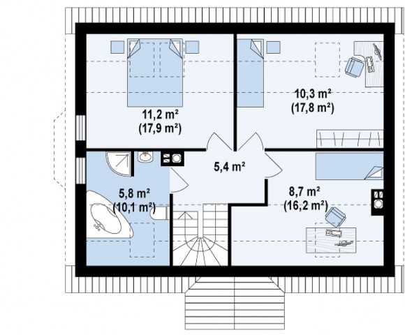
Проект небольшого дома с мансардным этажом Z14 W (139,5 м²)


2 003 бел. руб.



Образец готового проекта дома
Общая площадь*

139,5 м²

Площадь застройки

87,5 м²

Высота

7,19 м

Угол наклона кровли

38°

Площадь крыши

134,56 m²

Минимальные размеры участка

шир. 18,05m × длина 16,28m

Стены

газобетон, керамические блоки

Перекрытие

монолитное перекрытие

Кровля

керамическая черепица, металлочерепица, цементно- песчаная черепица

Ориентировочная стоимость строительства

84600 у.е.

Отзывов пока нет.

Be the first to review “Проект небольшого дома с мансардным этажом Z14 W (139,5 м²)”