Заказать проект: (029) 853-53-53, (029) 136-44-37
Заказать проект дома в Минске за 3000 рублей

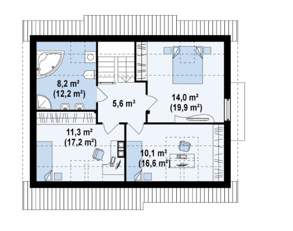
Проект стильного мансардного дома с террасой Z113


2 003 бел. руб.



Образец готового проекта дома
Общая площадь*

147,2 м²

Площадь застройки

94,2 м²

Кубатура

352,2 м³

Высота

7,49 м

Угол наклона кровли

40°

Площадь крыши

152,4 м²

Минимальные размеры участка

ширина 18,68м × длина 16,38м

Стены

газобетон, керамические блоки, силикатные блоки

Перекрытие

монолитное перекрытие

Кровля

керамическая черепица, металлочерепица, цементно-песчаная черепица

Ориентировочная стоимость строительства

140400 у.е.

Отзывов пока нет.

Be the first to review “Проект стильного мансардного дома с террасой Z113”