Заказать проект: (029) 853-53-53, (029) 136-44-37
Заказать проект дома в Минске за 3000 рублей

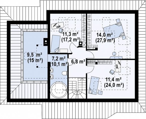
Проект дома с гаражом и террасой Z56 (216,8 м²)


2 232 бел. руб.



Образец готового проекта дома
Общая площадь*

216,8 м²

Площадь застройки

142,0 м²

Кубатура

508,6 m³

Высота

7,4 м

Угол наклона кровли

32°

Площадь крыши

227,27 m²

Минимальные размеры участка

шир. 22,89m × длина 18,39m

Стены

газобетон, керамические блоки

Перекрытие

монолитное перекрытие

Кровля

керамическая черепица, металлочерепица, цементно- песчаная черепица

Ориентировочная стоимость строительства

131625 у.е.

Отзывов пока нет.

Be the first to review “Проект дома с гаражом и террасой Z56 (216,8 м²)”