Заказать проект: (029) 853-53-53, (029) 136-44-37
Заказать проект дома в Минске за 3000 рублей

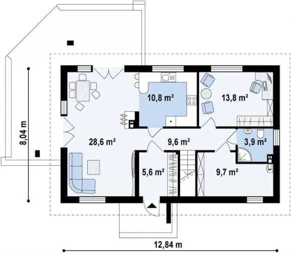
Проект дома с мансардой и несколькими балконами Z223


2 232 бел. руб.



Образец готового проекта дома
Общая площадь*

161,0 м²

Площадь застройки

103,2 м²

Кубатура

399,7 м³

Высота

7,78 м

Угол наклона кровли

40°

Площадь крыши

173,7 м²

Минимальные размеры участка

ширина 20,84м × длина 16,04м

Стены

газобетон, керамические блоки

Перекрытие

монолитное перекрытие

Кровля

керамическая черепица, металлочерепица, цементно-песчаная черепица

Ориентировочная стоимость строительства

135900 у.е.

Отзывов пока нет.

Be the first to review “Проект дома с мансардой и несколькими балконами Z223”