Заказать проект: (029) 853-53-53, (029) 136-44-37
Заказать проект дома в Минске за 3000 рублей

Готовый проект кирпичного дома с гаражом и большой террасой Z127


2 232 бел. руб.



Образец готового проекта дома
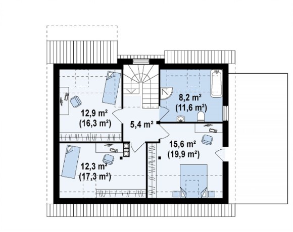
Общая площадь*

167,7 м²

Площадь застройки

119,2 м²

Кубатура

409,6 м³

Высота

7,62 м

Угол наклона кровли

38° / 8°

Площадь крыши

145 м²

Минимальные размеры участка

ширина 21,28м × длина 16,88м

Стены

газобетон, керамические блоки

Перекрытие

монолитное перекрытие

Кровля

керамическая черепица, металлочерепица, цементно-песчаная черепица

Ориентировочная стоимость строительства

141750 у.е.

Отзывов пока нет.

Be the first to review “Готовый проект кирпичного дома с гаражом и большой террасой Z127”