Заказать проект: (029) 853-53-53, (029) 136-44-37
Заказать проект дома в Минске за 3000 рублей

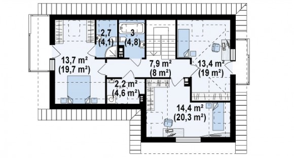
Проект дома с мансардным этажом и летней террасой Z150


2 596 бел. руб.



Образец готового проекта дома
Общая площадь*

166,5 м²

Площадь застройки

114,7 м²

Кубатура

415,61 м³

Высота

6,76 м

Угол наклона кровли

35°

Площадь крыши

176,4 м²

Минимальные размеры участка

ширина 17,84м × длина 23,84м

Стены

газобетон, керамические блоки

Перекрытие

монолитное перекрытие

Кровля

керамическая черепица, металлочерепица, цементно-песчаная черепица

Ориентировочная стоимость строительства

140850 у.е.

Отзывов пока нет.

Be the first to review “Проект дома с мансардным этажом и летней террасой Z150”