Заказать проект: (029) 853-53-53, (029) 136-44-37
Заказать проект дома в Минске за 3000 рублей

Проект дома с открытой террасой и гаражом Z210 GLt


2 003 бел. руб.



Образец готового проекта дома
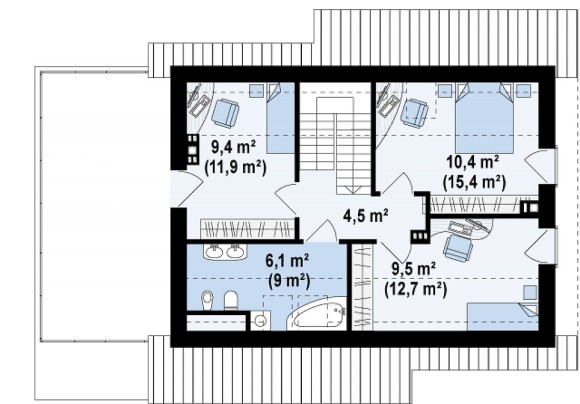
Общая площадь*

138,8 м²

Площадь застройки

108,3 м²

Кубатура

343,6 м³

Высота

7,25 м

Угол наклона кровли

35°

Площадь крыши

132,6 м²

Минимальные размеры участка

ширина 20,78 м × длина 16,84 м

Стены

газобетон, керамические блоки

Перекрытие

монолитное перекрытие

Кровля

керамическая черепица, металлочерепица, цементно-песчаная черепица

Ориентировочная стоимость строительства

117450 у.е.

Отзывов пока нет.

Be the first to review “Проект дома с открытой террасой и гаражом Z210 GLt”