Заказать проект: (029) 853-53-53, (029) 136-44-37
Заказать проект дома в Минске за 3000 рублей

Проект современного загородного дома с гаражом Zx41


2 801 бел. руб.



Образец готового проекта дома
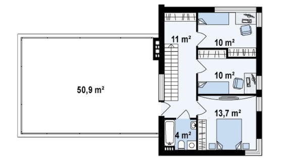
Общая площадь*

140,6 м²

Площадь застройки

116,0 м²

Кубатура

370 м³

Высота

7 м

Угол наклона кровли

3° / 1,15°

Площадь крыши

107 м²

Минимальные размеры участка

ширина 24,24 м × длина 17,84 м

Стены

газобетон, керамические блоки

Перекрытие

монолитное перекрытие

Кровля

ПВХ мембрана

Ориентировочная стоимость строительства

118958 у.е.

Отзывов пока нет.

Be the first to review “Проект современного загородного дома с гаражом Zx41”