Заказать проект: (029) 853-53-53, (029) 136-44-37
Заказать проект дома в Минске за 3000 рублей

Проект небольшого дома с гаражом Z217


2 003 бел. руб.



Образец готового проекта дома
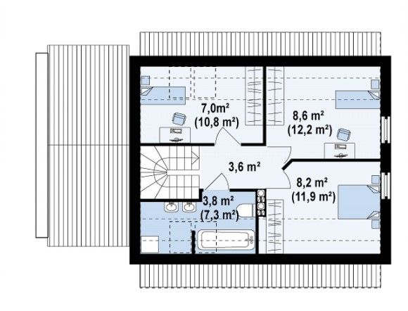
Общая площадь*

111,4 м²

Площадь застройки

84,4 м²

Кубатура

380,43 m³

Высота

7,51 м

Угол наклона кровли

40°

Площадь крыши

109,6 m²

Минимальные размеры участка

шир. 19,24m × длина 15,14m

Стены

газобетон, керамические блоки

Перекрытие

монолитное перекрытие

Кровля

керамическая черепица, металлочерепица, цементно-песчаная черепица

Ориентировочная стоимость строительства

92250 у.е.

Отзывов пока нет.

Be the first to review “Проект небольшого дома с гаражом Z217”